文字サイズ
背景色の変更

ここから本文です。

代官屋敷について

  1. ホーム
  2. 郷土資料館
  3. 代官屋敷について

重要文化財 都史跡「世田谷代官屋敷」

表門

主屋正面

主屋内部

世田谷代官屋敷は、江戸時代中期以来、彦根藩世田谷領20ヵ村の代官を世襲した大場家の居宅兼役宅で、大場代官屋敷とも呼ばれています。大名領の代官屋敷としては都内唯一の存在であり、その由緒により、昭和27年(1952)11月3日、「都史跡」に指定されました。
同時に同家所蔵の古文書は一括して「都重宝(現在都指定有形文化財)」に指定されています。
また、現存する大場家住宅主家および表門の2棟が、近世中期の代表的上層民家としてよくその旧態を保存し、貴重な建造物であるとの理由で、昭和53年(1978)1月21日、住宅建造物としては都内で初めて国の「重要文化財」に指定されました。

建物について

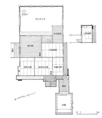
現在の建物は、七代目当主六兵衛盛政が、元文二年(1737)頃に建てたものです。
盛政は同四年、代官職に登用されましたが、それから十四年後の宝暦三年(1753)、役向専用に「書院座敷」を増築し、居宅部分にも改修を加えました。
この「書院座敷」の中庭が白州です。
また、第十代の当主・弥十郎景運は、文化元年(1804)、「書院座敷」建て替えのため、屋敷の絵図を作成していますが、これが現存する最古の代官屋敷図面です。
この時、改築されなかった主体部分は、盛政時代そのままを画いたものと考えられます。
弥十郎は、同十二年に内蔵も建てています。
また、嘉永七年(1854)頃には、十一代の当主・隼之助景長が二階座敷を増築し、名主詰所も新たに設けました。
近代に入ると、主屋内部の改修がさらに進みましたが、昭和四十二年(1967)、住宅の保存のために解体修理が行われ、往時の姿が復元されました。
弥十郎が建てた「書院座敷」は、解体修理がなされた昭和四十二年、武者小路実篤の”新しき村”(埼玉県入間郡毛呂町)に移築されています。

代官屋敷の古絵図面

現在主屋平面図

世田谷デジタルミュージアム

Copylight(C)2019 Setagaya City.All rights reserved.